Vai ai contenuti
Vai al footer
Regione Campania
Comune di Salerno
Hippocratica Civitas
Seguici su
https://it-it.facebook.com/ComuneSalerno
https://www.youtube.com/user/CittadiSalerno
Cerca
Nascondi la navigazione
Comune di Salerno
Amministrazione
NovitÃ
Servizi
Vivere il Comune
Regionali 2025
PNRR
Tutti gli argomenti...
Seguici su
https://it-it.facebook.com/ComuneSalerno
https://www.youtube.com/user/CittadiSalerno
Home
/
Amministrazione
/
Documenti e dati
/
Documento (tecnico) di supporto
/
Chiesa di Santa Trofimena
Chiesa di Santa Trofimena
Documentazione riguardante Architettura religiosa e ex conventi
Condividi
Facebook
Twitter
Linkedin
Whatsapp
Vedi azioni
Stampa
Ascolta
Invia
Argomenti
Urban Center
Tipo di documento
Documento (tecnico) di supporto
INDICE DELLA PAGINA
Descrizione
Galleria immagini
Descrizione
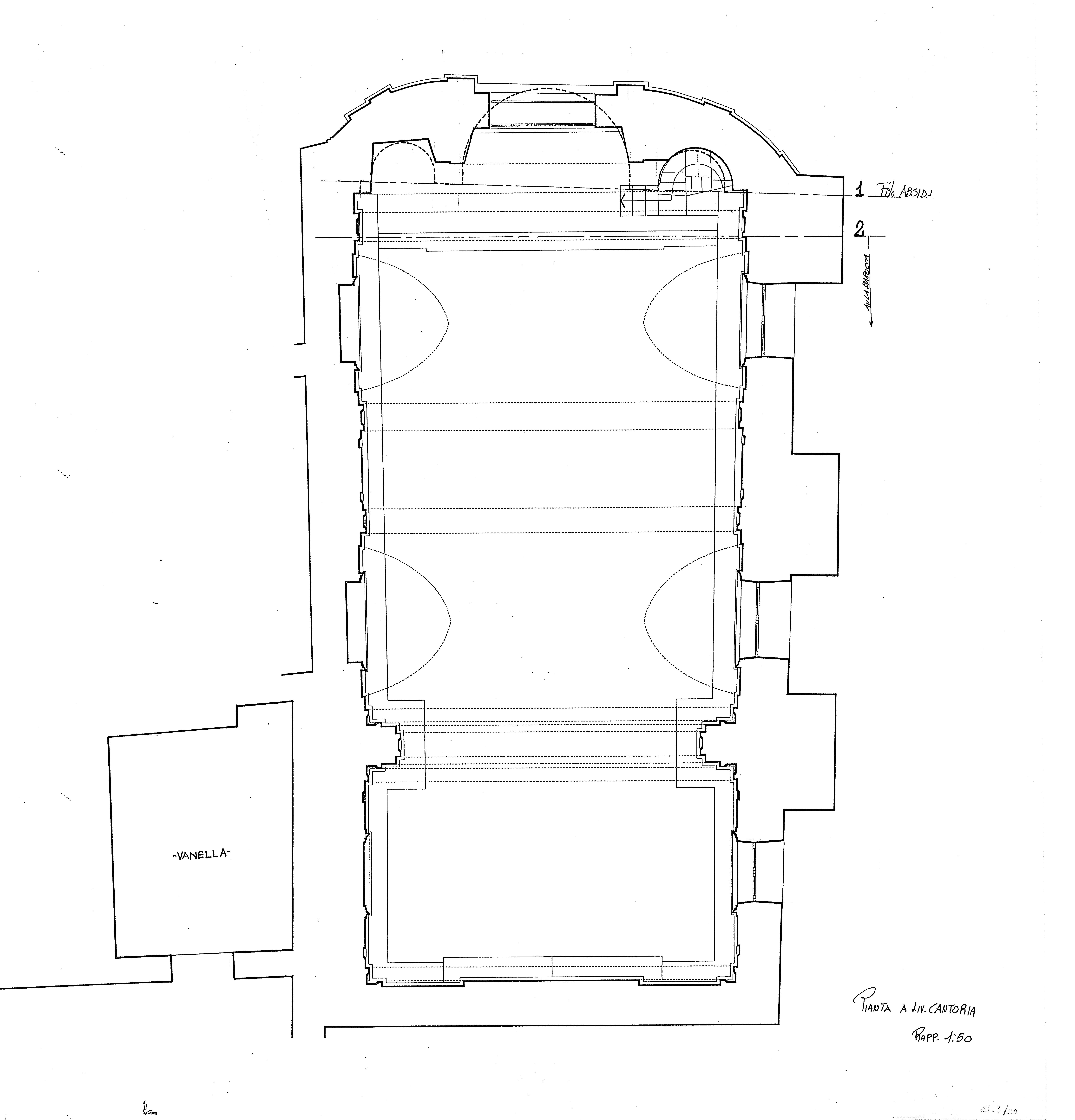
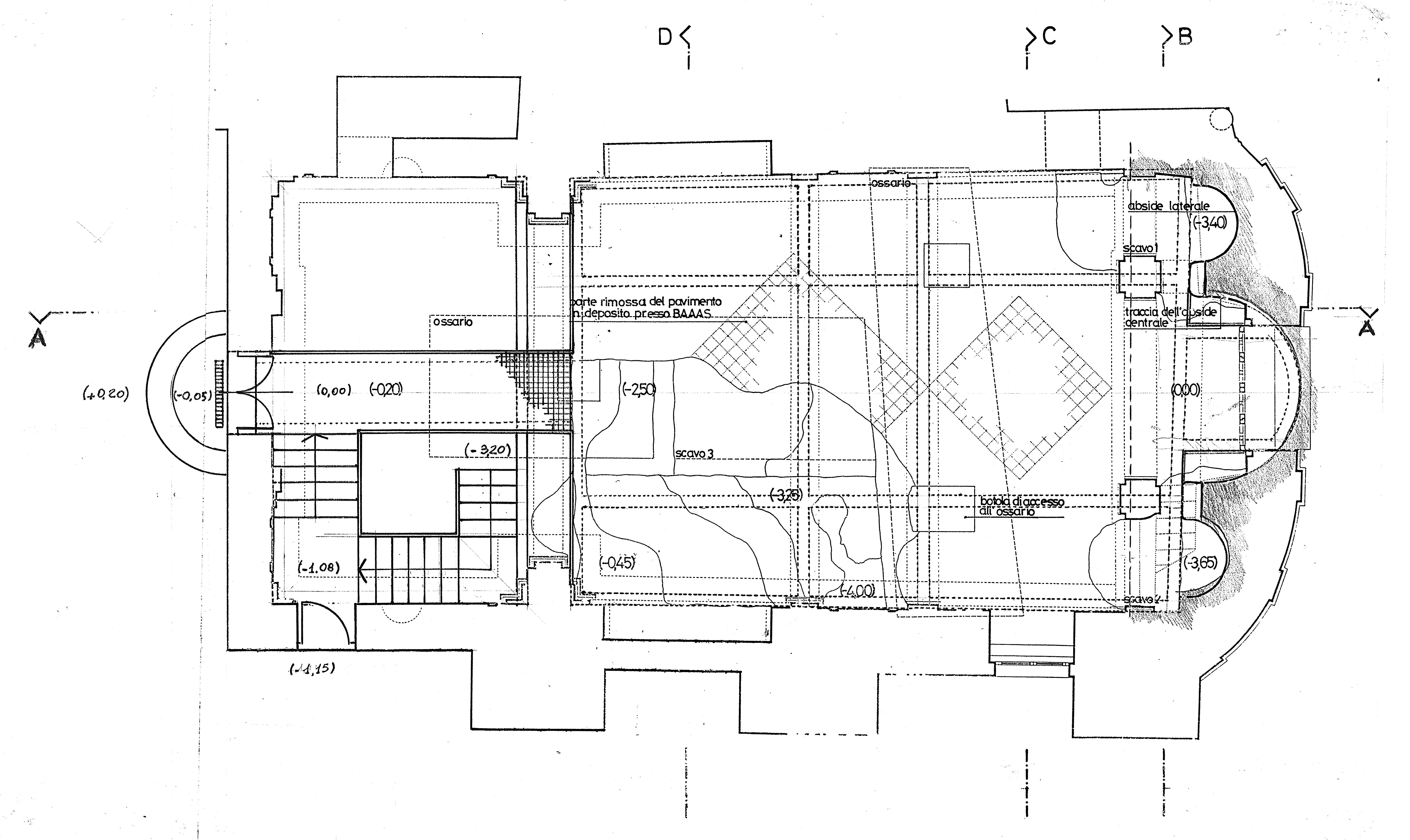
Chiesa di Santa Trofimena: piante, prospetti e sezioni (n. 17 elaborati).
Galleria
Pianta stato lavori
Lavori al 29/02/96
Sezione senza nome con indicazione pianta 1,2,3
Pianta a livello aula cultuale - raffronto tra le chiusure del portone
Pianta a livello -3,31
Absidi a livello cantoria a q. + 4,50
Absidi a livello aula cultuale 0,00
Sezione sulla cantoria 1:50
Prospetto posteriore 1:50
(prospetto senza nome) 1:50
Pianta a livello cantoria
Prospetto ingresso 1:50
Sezione longitudinale 1:50
Sezione prospetto lato altare 1:50
Sezione trasversale 1:50
Piante livello aula cultuale 1:50
Sezione 1:50
×
❮
❯
Zoom in
Zoom out
Quanto sono chiare le informazioni su questa pagina?
Valuta da 1 a 5 stelle la pagina
Valuta 5 stelle su 5
Valuta 4 stelle su 5
Valuta 3 stelle su 5
Valuta 2 stelle su 5
Valuta 1 stelle su 5
Quali sono stati gli aspetti che hai preferito?
1/2
Le indicazioni erano chiare
Le indicazioni erano complete
Capivo sempre che stavo procedendo correttamente
Non ho avuto problemi tecnici
Altro
Dove hai incontrato le maggiori difficoltà ?
1/2
A volte le indicazioni non erano chiare
A volte le indicazioni non erano complete
A volte non capivo se stavo procedendo correttamente
Ho avuto problemi tecnici
Altro
Vuoi aggiungere altri dettagli?
2/2
Dettaglio
Inserire massimo 200 caratteri
Indietro
Avanti
Contatta il comune
Leggi le domande frequenti
Richiedi assistenza
Chiama l'URP al numero 089662134
Prenota appuntamento
Problemi in cittÃ
Segnala disservizio
cookies
Cerca
Cerca nel sito
Cerca
FORSE STAVI CERCANDO